Italiano
1 Camere 1 Bagni 60 m2
Caratteristiche principali
Codice
V227
Prezzo
260.000 EUR
Classe
G
Locali
2
Mq Giardino
70
Altre caratteristiche e accessori
Stato Immobile
Ristrutturato
Posizione
Mare
Panorama
Vista Giardino
Piano
Piano Terra
Orientamento
Est Nord Ovest
Totale Piani
Quattro
Lati Liberi
3
Giardino
Privato
Arredi
Arredato a Nuovo
Tipo Soggiorno
Soggiorno
Tipo Cucina
A Vista
Riscaldamento
Centralizzato
Tipo Riscaldam.
Termo valvole
Tipo Impianto
Radiatori
Fonte Energetica
Metano
Acqua Calda
Autonoma
Raffrescamento
Predisposizione
Infissi
Legno Doppio Vetro
Serramenti
Buono
Persiana
Tapparella PVC
Pavim. Giorno
Gres Porcellanato
Pavim. Notte
Gres Porcellanato
Pavim. Cucina
Gres Porcellanato
Pavim. Bagno
Gres Porcellanato
Accesso Disabili
Nessuna Barriera
Accesso interno disabili
Pieno accesso
Accessori
Parco Condominiale, Passaggio Pedonale, Piscina, Portineria/Custode, Ripostiglio, Tavolini Esterni
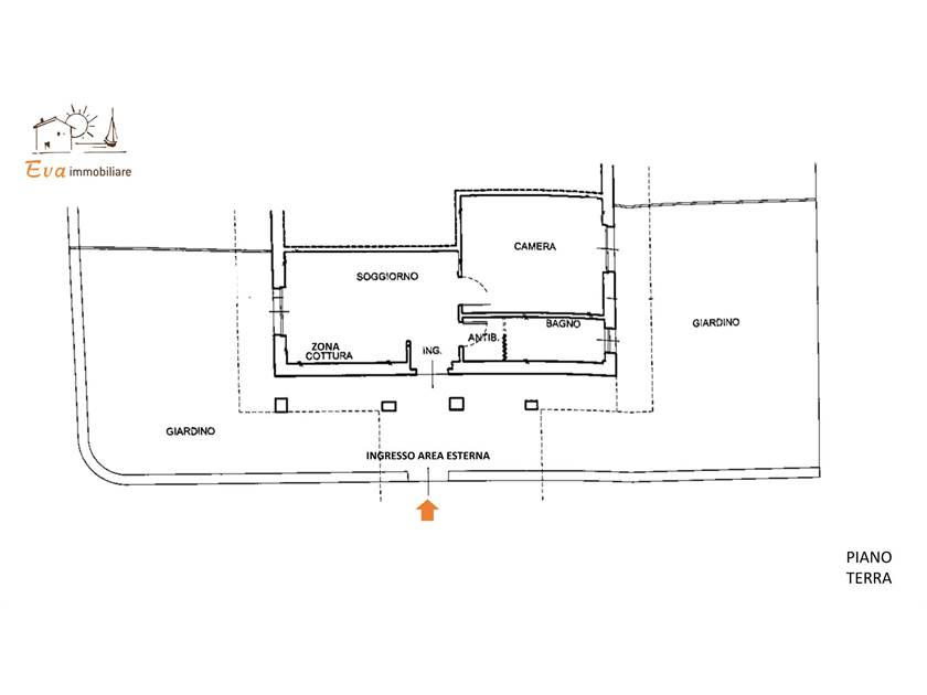
In residenza con piscina e tanto spazio verde, si propone grazioso bilocale dall’ingresso indipendente e pronto da abitare.
L'interno è stato oggetto di una attenta ristrutturazione ed ogni locale si affaccia sul giardino privato.

L'arredo è curato nei dettagli ed è compreso nella richiesta.
All'esterno troviamo il porticato dove poter pranzare ed il giardino dove è presente anche una bella casetta degli attrezzi.
Questa soluzione è di un confort abitativo impareggiabile, poiché si trova a pochi minuti a piedi dal centro e si può vivere il grande spazio esterno in tutta tranquillità.

Per ulteriori informazioni e per prendere appuntamento di visita, potete inviarci una mail ad info@agenziaeva.it indicando il riferimento V227 oppure chiamarci al 334.6638204
VIA DEI GAZZI , Loano (SV)
Cookie preference